參數信息
| 案例名稱 | 88平兩居房屋設計 | 戶型 | 兩居室 | 案例面積 | 88㎡ |
| 風格 | 現代 | 店面 | 北店 | 設計師 |
設計說明
1. 小戶型收納尤為重要,用柜體取代隔墻,劃分不同功能區。
2. 客餐廳用一長排柜子連接,整體感更強。
3. 餐桌和電視柜都做了懸浮處理,融入空間結構。
4. 次臥除了電視柜,還增加了一組L型定制柜,同時將可翻折床隱藏其中。
5. 其他區域通過高差處理,形成空間分割,層次豐富也更有趣味性。
2. 客餐廳用一長排柜子連接,整體感更強。
3. 餐桌和電視柜都做了懸浮處理,融入空間結構。
4. 次臥除了電視柜,還增加了一組L型定制柜,同時將可翻折床隱藏其中。
5. 其他區域通過高差處理,形成空間分割,層次豐富也更有趣味性。
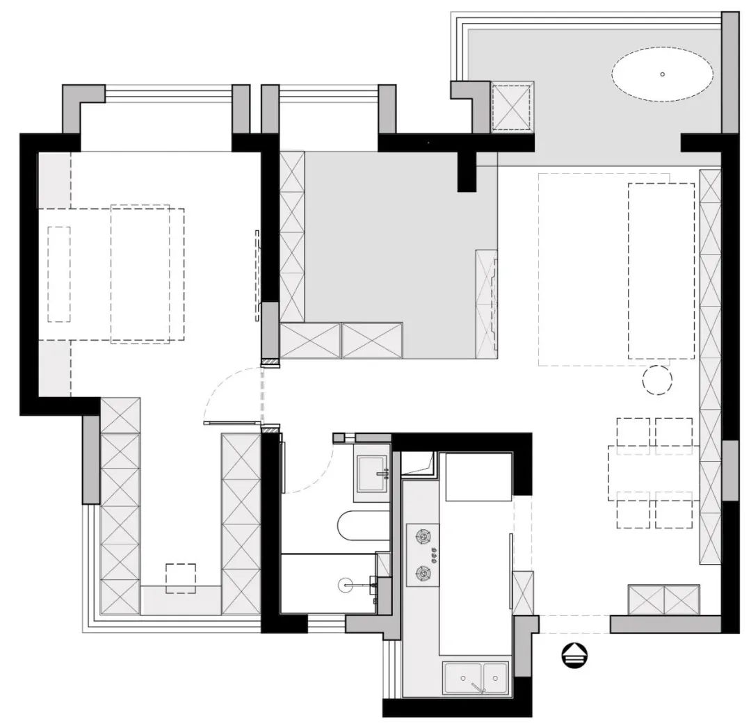
平面圖
客廳
懸吊的電視柜,讓客廳和次臥隔而不斷,小空間看起來更加透氣。
餐廳
客餐廳用了整面的收納柜過渡,餐桌的構造比較特別,一邊是搭在柜子上,另一端則是懸吊在頂上的。(懸挑的方式主要是想減少桌面以下的東西,空間不大希望地面盡量整潔一些。)
臥室
主臥,以大面積的灰色塊為基調,搭配黑色家具,增加空間的厚重感,窗簾局部加入橘色點綴,打破黑白灰的清冷。
廚房
L型櫥柜,簡潔實用,適合小戶型,吊柜底部嵌入燈帶,避免做飯時背光。
衛生間
衛生間,每一件單品都是精挑細選。墻地磚用了統一的灰色,同樣做了橘色點綴,綜合空間中的色感。
玄關
空間有對比才有層次,從過道看向客廳,餐廳的那一縷暖光剛剛好。
