參數信息
| 案例名稱 | 80平北歐風格裝修 | 戶型 | 兩居室 | 案例面積 | 80㎡ |
| 風格 | 北歐 | 店面 | 北店 | 設計師 |
設計說明
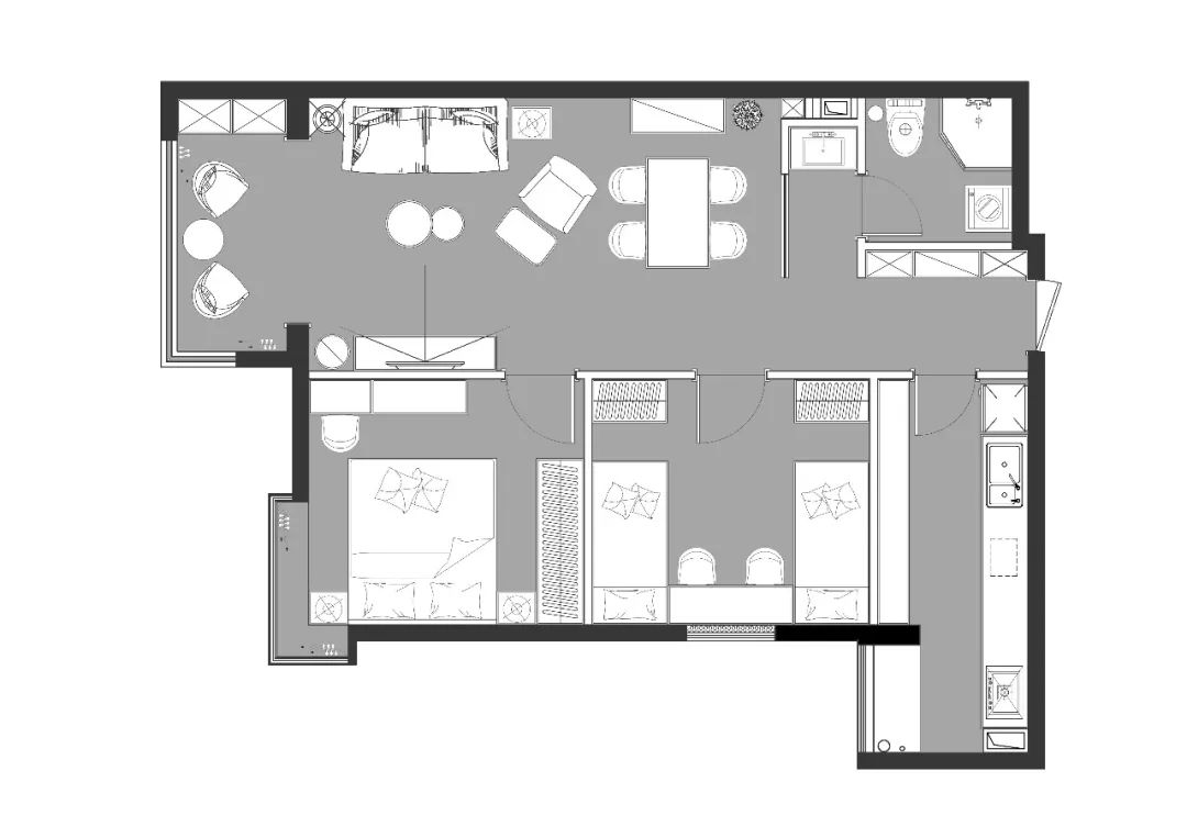
將廚房及主次臥之間的墻向左移動,增加廚房使用面積;在滿足了主臥基本使用功能后,增大的女兒房采用對稱性布局,以中間雙人書桌為界限分割擺放兒童床,既滿足了孩子分開睡覺,互不干擾,室內中央又能滿足孩子玩耍休閑的空間;衛生間干濕分區,多人使用不沖突。
平面圖
客廳
客廳選擇了馬卡龍藍色的墻面顏色和藍色系的地毯,搭配吱音品牌的沙發,清新且輕盈。定制地臺與客廳形成有效互動。
餐廳
餐廳與衛生間干區的分隔采用了黑色鐵藝玻璃隔斷,空間的采光與通透度都得到提高。
臥室
主臥馬卡龍藍色的床頭與客廳沙發背景色調相呼應,床頭與暖色系壁紙形成對比,溫暖的壁燈燈光,成為空間中最舒適的居心地。
廚房
地面六角磚、墻面花磚,使廚房充滿生機,同時也使烹飪成為了一件充滿樂趣的事。
衛生間
干濕分離的衛生間設計,使用大量現代的元素,原木色的干區臺盆柜,與白色瓷磚的結合,加上黑色色金屬拉手和柜腳,使整個空間更加飽滿。
兒童房
女兒房是重點規劃設計的空間,兩張小床分別靠墻擺放,提升安全感。靠窗是孩子們的學習書桌,中間留出了足夠的空間給孩子們玩耍。
免費申請戶型規劃
專業設計師1對1免費家裝指導
今日已有 29 業主申請
免費裝修咨詢 7x24小時
400-001-0081 010-67488788
