參數信息
| 案例名稱 | 88平兩居室裝修設計 | 戶型 | 兩居室 | 案例面積 | 88㎡ |
| 風格 | 現代 | 店面 | 北店 | 設計師 |
設計說明
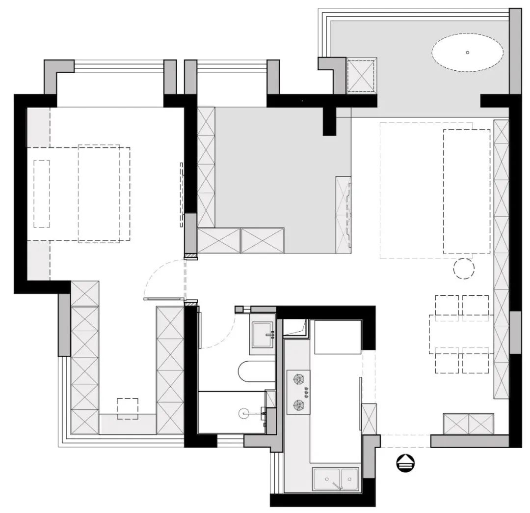
1. 小戶型收納尤為重要,用柜體取代隔墻,劃分不同功能區。
2. 客餐廳用一長排柜子連接,整體感更強。
3. 餐桌和電視柜都做了懸浮處理,融入空間結構。
4. 次臥除了電視柜,還增加了一組L型定制柜,同時將可翻折床隱藏其中。
5. 其他區域通過高差處理,形成空間分割,層次豐富也更有趣味性。
2. 客餐廳用一長排柜子連接,整體感更強。
3. 餐桌和電視柜都做了懸浮處理,融入空間結構。
4. 次臥除了電視柜,還增加了一組L型定制柜,同時將可翻折床隱藏其中。
5. 其他區域通過高差處理,形成空間分割,層次豐富也更有趣味性。
平面圖
客廳
懸吊的電視柜,讓客廳和次臥隔而不斷,小空間看起來更加透氣。
餐廳
輕盈簡潔的懸吊餐桌,燈具部分是木質的盒子,里面嵌了光源。(桌子的吊桿實際并沒有起到承重作用,真正的承重主要是靠吊桿里面的吊筋,一端固定在頂上,一端固定在餐桌上。)
臥室
主臥,以大面積的灰色塊為基調,搭配黑色家具,增加空間的厚重感,窗簾局部加入橘色點綴,打破黑白灰的清冷。
廚房
L型櫥柜,簡潔實用,適合小戶型,吊柜底部嵌入燈帶,避免做飯時背光。
衛生間
衛生間,每一件單品都是精挑細選。墻地磚用了統一的灰色,同樣做了橘色點綴,綜合空間中的色感。
陽臺
陽臺一角,通過不同的高差分割功能區,放置浴缸,讓空間變得生動有趣,增加生活的儀式感。
玄關
空間有對比才有層次,從過道看向客廳,餐廳的那一縷暖光剛剛好。
免費申請戶型規劃
專業設計師1對1免費家裝指導
今日已有 27 業主申請
免費裝修咨詢 7x24小時
400-001-0081 010-67488788
