參數信息
| 案例名稱 | 極簡暖白 | 戶型 | 四居室 | 案例面積 | 150㎡ |
| 風格 | 簡約 | 店面 | 北店 | 設計師 |
設計說明
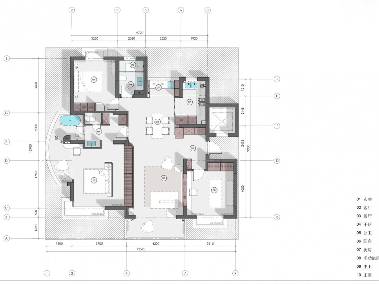
平面圖
客廳
陽臺與客廳打通無界,利用大幅落地窗引景入內,滿目野蠻生長的綠打破室內外的界限,將自然的生命力帶入室內視野,室內純粹圓融的米色系空間是最佳的映襯,于一側肆意生長的植株,同室外形成呼應,一內一外,生命力攀生,交織出令人滿目舒暢的視覺效果。
餐廳
餐廳整體安裝吊頂,內藏中央空調送風系統等各色管道,視覺上劃分功能區,且不會突兀。定制大理石餐桌,吧臺餐桌一體,足夠容納多人前來做客聚餐,與中廚西廚動線均方便快捷,可以作為操作臺面補充使用,功能更為多樣化。
廚房
廚房采用半開放式布局,日常使用更為靈活便利。下廚時不比擔心油煙溢出影響其他空間,深茶色玻璃移門兼具通透感與私密性,既通透又能起到一定的視覺遮擋效果,同時跟低飽和純色空間形成色差碰撞,視覺效果更為豐富。
衛生間
以玻璃移門分隔主衛與陽臺,開放獨立靈活控制,使用更為方便。衛生間同樣是墻頂地一體,無障礙淋浴間的設計,對防水施工要求更高,以專業性的工藝技術實現理想設計,給予屋主理想的品質生活。
玄關
入戶左手邊打造玄關柜,通高柜體增加收納容量,預留換鞋凳位置,更方便日常使用,下方留空,便以收納進出替換的鞋品等,保持玄關整潔干凈。
