參數信息
| 案例名稱 | 135平灰調的沉穩之家 | 戶型 | 三居室 | 案例面積 | 135㎡ |
| 風格 | 現代 | 店面 | 北四環 | 設計師 | 鐘婉婷 |
設計說明
屋主陳先生是一位儒雅的70后,飽讀詩書且看過大千世界,整體裝飾元素都是沉穩克制的,灰調的材質雖暗卻明,點綴零星橘色軟裝提亮空間
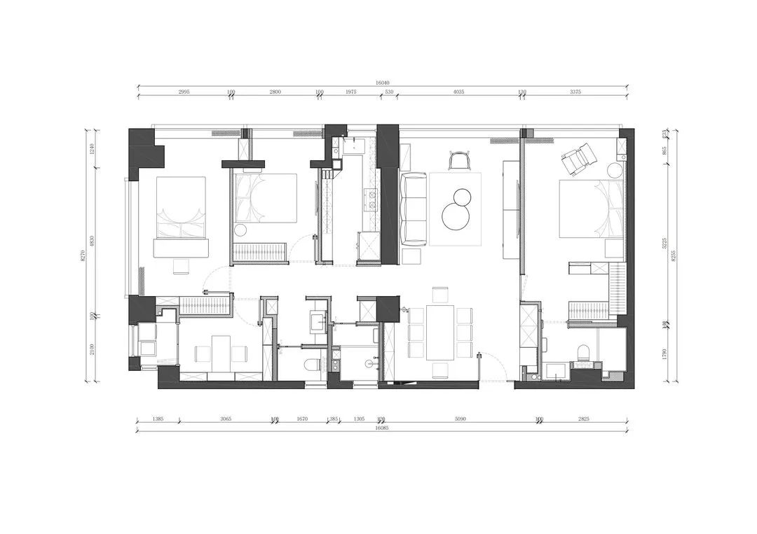
平面圖
客廳
公共空間的墻體都做了飾面裝飾,但沒有過多的線條造型;家具表達的設計語言也是沉穩的;即使是B&O的音響,只選用了簡潔的單色
餐廳
餐邊柜作為公共區域的水吧臺,設置水具酒具等實現就近取物的動線,鋼制層板同時具有展示陳列功能,下方柜門也可滿足收納
臥室
床尾的斗柜可作為疊放的衣物補充。床邊書柜滿足屋主睡前閱讀的習慣
廚房
廚房墻向隔壁臥室借了一些空間,得到現在的U型廚房,煙道用斜角柜削弱壓迫感,左側35cm深的臺面可以擺放一列小廚電,節省出富余的操作空間,也增加了相應儲物量。
衛生間
衛生間墻地統一了灰調,在壁掛馬桶的背后留出了壁龕,放置香氛,讓沐浴更衣這件事充滿了儀式感
書房
書房臨近女兒房,外接生活陽臺,是一家三口除了公共空間外的另一個相聚空間。一家人都需要獨處的空間,也需要相遇的機會。
兒童房
我們沒有做過多的裝飾,只讓整個空間在素雅的配色里跳脫出一些活力。剩下的都交給這個房間里最大的配飾---雙面的采光。
本方案設計師
