參數信息
| 案例名稱 | 舒心靜雅·讓家“不太冷” | 戶型 | 兩居室 | 案例面積 | 76㎡ |
| 風格 | 案例展示 | 店面 | 設計師 | 徐忠強 |
設計說明
我們設計的目的是在解決屋主需求的同時,將設計悄無聲息的融入家中,呈現出空間特有的魅 力。入門之后,家就在迎接歸來的我們,柔和的燈光與半弧形吊頂相呼應,增加空間的柔和度 ,讓他變得“不太冷”。
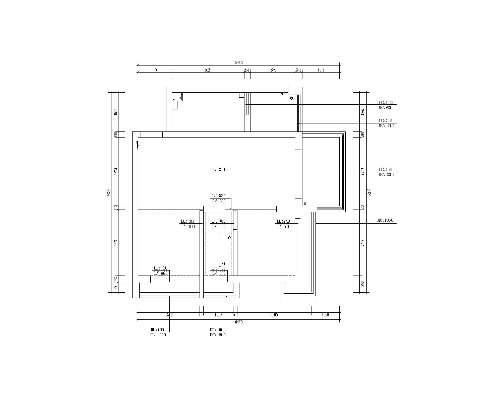
平面圖
客廳
適度留白的簡潔色調,干凈利落的線條感,加以一張棕色雙人沙發、簡約富有線條感的茶幾組 合,整個客廳盈缺妥恰,給人以舒緩治愈的心理感受。
我們利用特定材質的肌理觸感及色彩的細膩質感,在空間不停地在重復出現,于不動聲色中為 空間賦予可感知的生活態度。
臥室
我們將空間打散再重組 空間功能多變和重合,讓居住者在空間中的活動更加自由、舒適輕松 。
睡眠空間與閱讀空間利用色塊的合理穿插,使得室內融為一體,用極其簡單的線條勾勒出最具 靈性的空間,以豐富的節奏感,給人一種煥然一新的體驗。
床頭弱光源的點綴,更是營造出了舒心靜雅的睡眠氛圍。
廚房
廚房在傳統開放性規劃和封閉式格局之間,設計再一次改寫生活的面貌。
衛生間
我們高效利用尷尬的轉角位置,將其做成較為隱蔽的干區,形成干濕分離,使得屋主生活更便 捷。圓形的鏡面與隱藏式燈光讓這方小小的空間富有浪漫的生活情調。
本方案設計師
