參數信息
| 案例名稱 | 134㎡混搭風,餐廳、書房雙中島布局,造就獨具一格的家! | 戶型 | 三居室 | 案例面積 | 134㎡ |
| 風格 | 現代 | 店面 | 企鵝村文創園美晟家裝飾 | 設計師 | 趙博洋 |
設計說明
屋主是一個思想前衛并且愛好廣泛的95后,對于房屋的需求就是可以隨心搭配,不局限于某一固定風格,自己獨居的空間不一定很豪華,但一定是自在的空間,是擺脫一日高強度工作后安靜舒適的棲息地
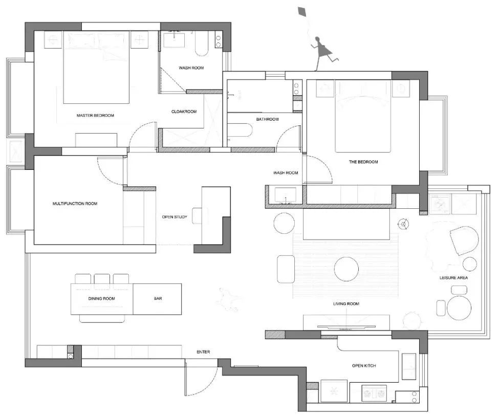
平面圖
客廳
在這個充滿活力的住宅里,展現出不拘一格的魅力,以各種方式和諧地將屋主喜好的物件、紀念品結合起來。
接近黑色的廚房頂面、深色木飾面、不銹鋼墻面飾面以及不銹鋼臺面,無一不體現了屋主的獨特喜好,每一個元素獨立存在卻能很好的結合在一起。
從玄關進入房屋,開闊的餐廳空間實現了功能與情景的融合。
臥室采用綠色及灰色的搭配,呼應空間主體的同時,能夠將深色系木制床襯托的更具有質感
以書房為中心的回字形動線布局,在提供靈活自由的動線的同時,也給屋主的愛好預留了更多搭配組合的空間
衛生間延續了整體工業與復古融合的基調,墨綠色的墻磚質感更顯突出。
本方案設計師
