參數信息
| 案例名稱 | 120㎡簡約三居室,撩人的布局配色都很贊! | 戶型 | 三居室 | 案例面積 | 120㎡ |
| 風格 | 簡約 | 店面 | 企鵝村文創園美晟家裝飾 | 設計師 | 趙博洋 |
設計說明
簡約風格的特色是將設計的元素、色彩、照明、原材料簡化到蕞少的程度,但對色彩、材料的質感要求很高。因此,簡約的空間設計都非常含蓄,往往能達到以少勝多、以簡勝繁的效果,以簡潔的表現形式來滿足人們對空間環境的需求。
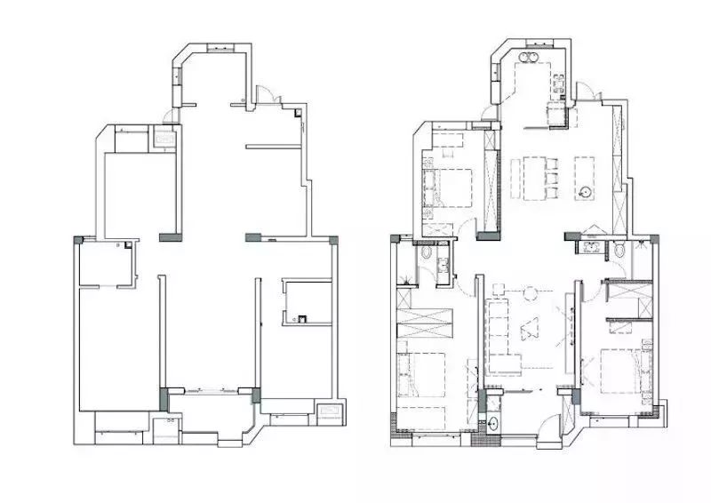
平面圖
客廳
簡約中性的色調搭配,干凈利落的背景墻及家具,暖白色調的燈光,讓現代的居家溫馨時尚感浮然而生。
開.放式的廚房,很符合業主骨子里的浪漫情懷,你在客廳玩鬧,我在廚房準備著一家人的美味晚餐,看不見的愛意在整個空間飄蕩。
舉辦簡單的家宴,邀請朋友做客輕松有趣,尤其是和好朋友一起,把酒言歡,把生活過成詩歌。
米色的床頭背景墻上掛上衣服白邊的裝飾畫,充滿隨性的掛畫、盡顯年輕時尚的藝術氣息。清晨,陽光透過大大的落地窗照進來,美好的心情能持續一整天。
次臥設計以溫柔的灰色為主調,做舊的床頭柜與棉麻舒適床品的柔軟相搭,讓空間的質感構成平衡。
衛生間灰白搭配簡潔美觀。墻上的皮帶原木掛鏡,增添了精致感。
黑色小巧的兒童鋼琴,綠色的地毯,白色的落地風扇,可愛的玩偶,都為這小小的休閑區增添了一絲趣味性,使得娛樂性十足。為孩子打造一個充滿童趣的小天地!
本方案設計師
