參數信息
| 案例名稱 | 現代美學 | 戶型 | 三居室 | 案例面積 | 100㎡ |
| 風格 | 現代 | 店面 | 十里河 | 設計師 | 邢珍珠 |
設計說明
我在人間販賣黃昏,只為收集時間溫柔去見你。家外,披上鎧甲,勇往直前。 家里,如一杯沏好的熱茶,剛好的溫度,熱烈,醇香。
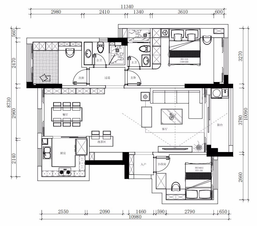
平面圖
客廳
以現代簡約風格為基礎,素雅的色調簡潔大方。鞋柜木飾面延伸至客廳,大幅提升視野的通透性,同時模糊空間的界線。
臥室
木色構筑起現代風格的居家氛圍,目之所及是純粹的質樸與自然,原木自帶的溫潤氣質加上大量的留白,迸發出空間的溫度。
廚房
沒有多余的的裝飾,一物一畫,明艷了空間色彩,共同賦予家豐富的故事氛圍。
衛生間
衛生間區域簡潔優雅,流暢的線條配上暖暖的色調,通過唯美的規則分割,完美實現功能與美感的結合
本方案設計師
