參數信息
| 案例名稱 | 遠洋萬和 | 戶型 | 三居室 | 案例面積 | 138㎡ |
| 風格 | 現代 | 店面 | 大鐘寺 | 設計師 | 張晗 |
設計說明
目前倆個人居住,將來考慮兒童房,對客廳需求很大,所以打通的客廳與臥室的墻,把客廳做大,及客廳,書房,西廚與一體的多功能起居室。
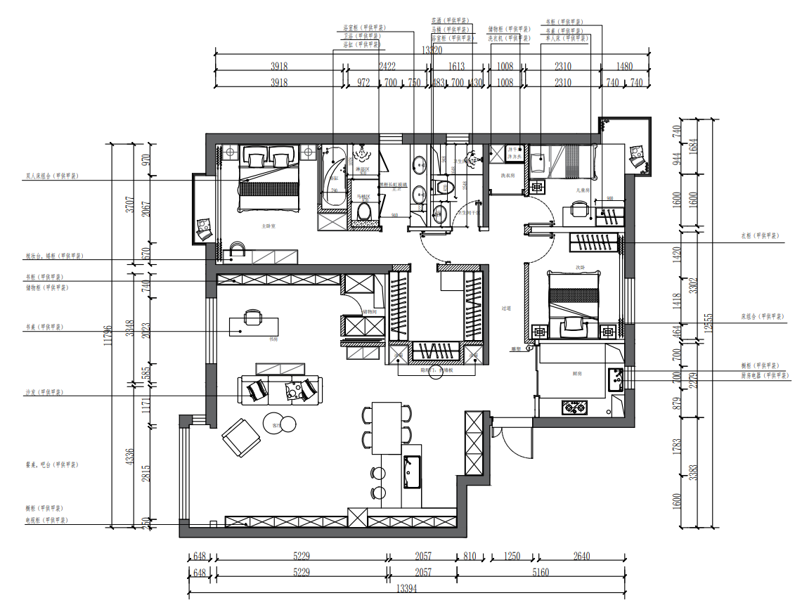
平面圖
客廳
整體配合以為黑,白,木色,為主色調,增加了紅色做點綴。
臥室
衛生間
書房
玄關
本方案設計師
