參數信息
| 案例名稱 | 現代簡約 | 戶型 | 兩居室 | 案例面積 | 88㎡ |
| 風格 | 現代 | 店面 | 大鐘寺 | 設計師 | 閆鑫鑫 |
設計說明
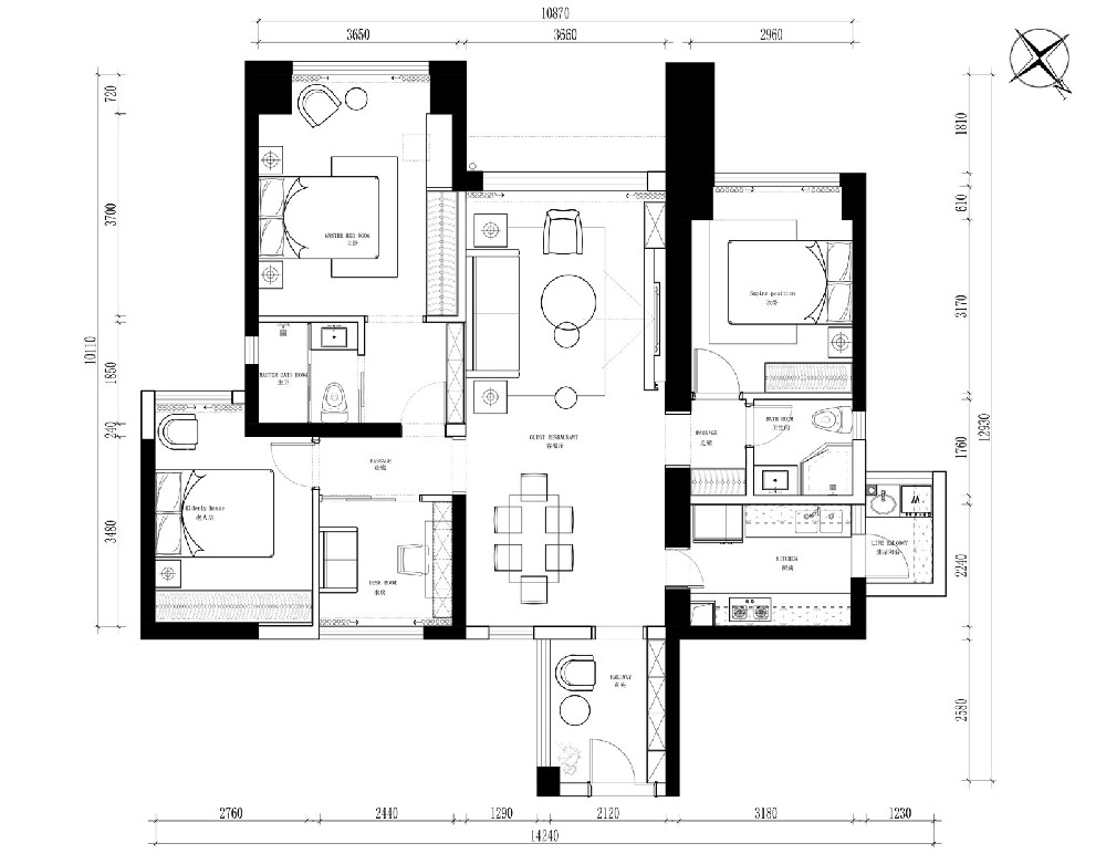
平面圖
客廳
灰色既沉穩考究又柔和高雅。從餐廳望向客廳,愛馬仕橙色單人椅在整個灰色空間中越發出挑。為空間增添了一絲靈動感
煙熏木裝飾柜與淺色石材背景形成對比,豐富空間層次。墻面的掛畫以及一些小擺件又更顯層次感。
餐廳
椅子的靠墊選擇了柔和的帶點暖灰色的布藝搭配胡桃木餐桌,營造溫馨德就餐環境。
臥室
暖系地板做鋪墊,冷色系墻面做撞色,凸顯了層次感,床頭背景藝術漆做了處理,使空間變得律動了起來。
廚房
廚房采用了等字形的櫥柜,保證了居家實用性,預留了很多的操作臺面。在忙碌過后,回到愛家,為自己烹飪一餐美食,靜靜的享受這個過程,成就感滿滿。
衛生間
主衛的鏡柜為女主人留足了每天精心打扮的空間,收納空間也足夠使用。大理石和金色元素的碰撞相得益彰。
玄關
入戶玄關打造了一個休息區,方便屋主在繁忙工作的后,回到家換鞋小憩一下。明處展示破除整體一色德沉悶,增加了層次感。暗處收納將瑣碎與無序收納到鞋柜中,留下整潔的好印象。
本方案設計師
